Three storey semi-detached investment property on this busy retail street. The property is currently let to RBS Plc (trading as Halifax) for £22,000pa, representing an Initial Gross Yield of circa 10%, with potential for further future development, subject to consents.
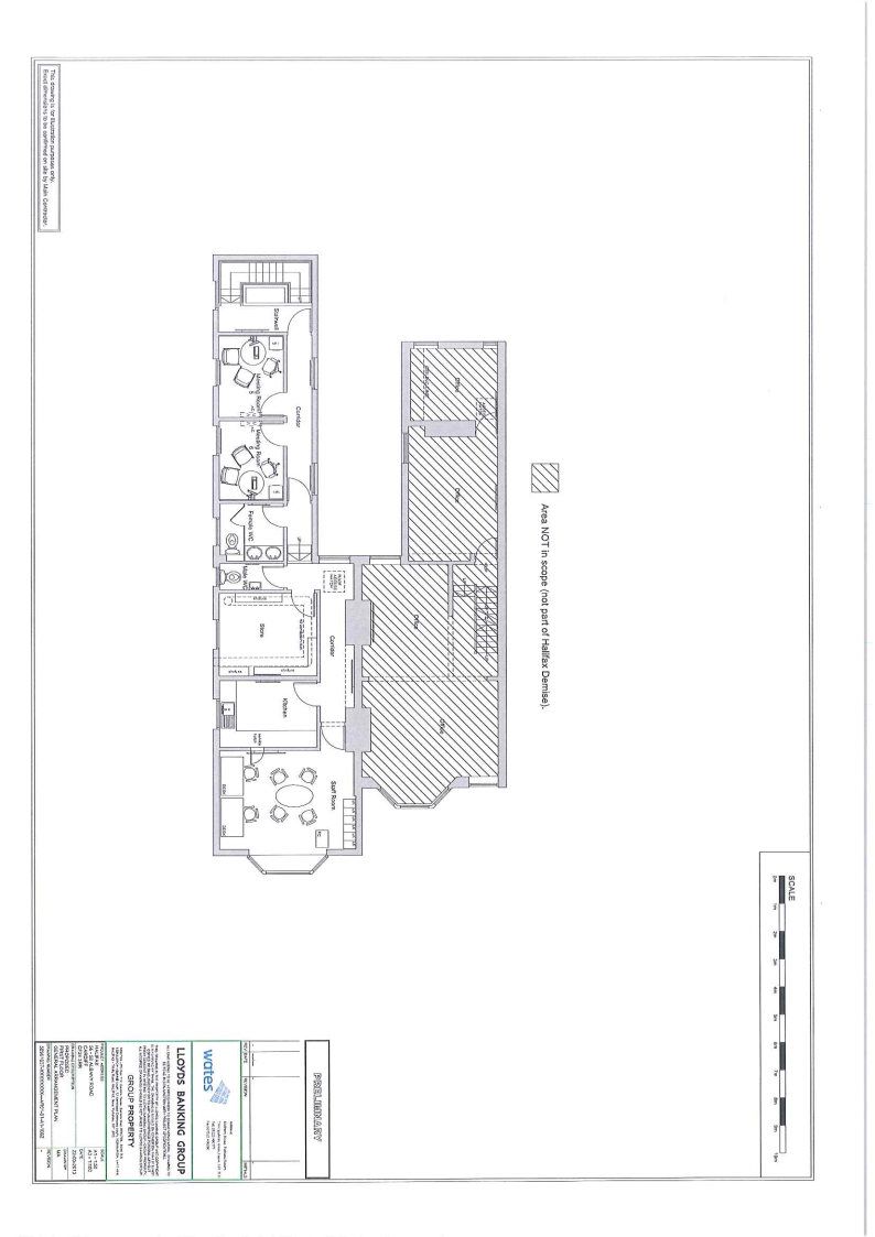
At present the building is let to Royal Bank of Scotland PLC (trading as Halifax) for a term of 3 years from February 2025, at a rental of £22,000pa. We are informed that the lease occupies the entire building though the current use is only the ground and first floors and there are no stairs to the second floor at present (therefore not inspected). The tenants also occupy the ground floor of neighbouring 56 Albany road but this is not included in the sale.
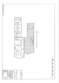
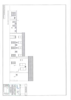
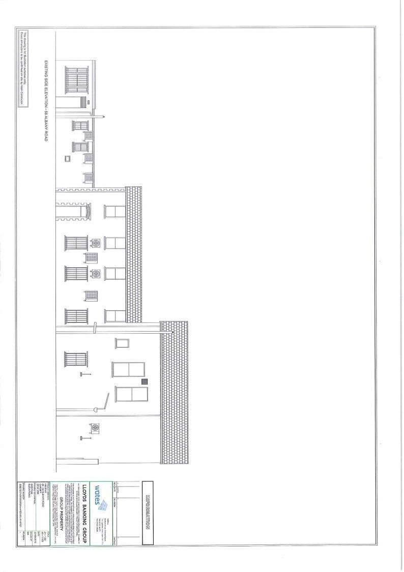
The property benefits from a side entrance which could provide a side entrance to the upper floors to benefit future development, subject to any necessary consents. The building itself is in good order and briefly comprises the main banking hall with private offices to the rear and a side entrance. Upstairs there are further offices, again in very good condition as well as a kitchen as and Male/Female WC's. There is a further second floor which is not currently accessible but appears to comprise two rooms from floorplans provided by the vendor.
In our opinion, the ground floor rear and upper floors could provide potential for further future development subkect to any necessary consents while still retaining a commercial offering to the ground floor unit facing Albany road.
GF - Banking hall, secure ATM room, rear lobby, stairs, 4 x offices/meeting rooms, boiler room, comms room.
FF - 3 x offices/meeting rooms, male/female WC's, kitchen.
SF - Informed two rooms (not inspected)
OS - Side lane
Informed Freehold – please refer to legal pack for verification of tenure
Viewing by appointment with Seel Auctions – www.seelauctions.co.uk
Buyer's Premium - 1.50% with a minimum of £2,000 (inc of VAT) payable on exchange of contracts. Please refer to the legal pack for any further disbursements to be paid by the purchaser on completion.
Each property sold is subject to a Reserve Price. The Reserve Price, which is agreed between the seller and the auctioneer just prior to the auction, will be within + or - 10% of the Guide Price. The Guide Price is issued solely as a guide so that a buyer can consider whether or not to pursue their interest. Both the Guide Price and the Reserve Price can be subject to change up to and including the day of the auction.
Auctioneers Office, Seel Auctions (029) 2037 0117
FOR SALE BY PUBLIC AUCTION on Tuesday, 12 May 2026 online via the Seel Auctions website. Bidding will commence from midday on Monday, 11 May and conclude in order from Lot 1 at 4:00 pm on Tuesday, 12 May 2026
We've partnered with Watts Commercial Finance to offer a wide range of finance options from bridging loans to development finance.
Apply for Finance* Generally speaking Guide Prices are provided as an indication of each seller's minimum expectation, i.e. 'The Reserve'. They are not necessarily figures which a property will sell for and may change at any time prior to the auction. Virtually every property will be offered subject to a Reserve (a figure below which the Auctioneer cannot sell the property during the auction) which we expect will be set within the Guide Range or no more than 10% above a single figure Guide.
By setting a proxy bid, the system will automatically bid on your behalf to maintain your position as the highest bidder, up to your proxy bid amount. If you are outbid, you will be notified via email so you can opt to increase your bid if you so choose.
If two of more users place identical bids, the bid that was placed first takes precedence, and this includes proxy bids.
Another bidder placed an automatic proxy bid greater or equal to the bid you have just placed. You will need to bid again to stand a chance of winning.