Mixed use property comprising a ground floor commercial unit, rear and lower ground floor stores and rooms and shower room to the first floor. The property is located in prominent position, with main road shop frontage situated in the Rhondda village of Ystrad. Approved planning is in place for proposed change of use from mid terrace office building to a residential dwelling house.
The ground floor commercial unit has previously been used as a clothing retailer. The drawings shown have been provided by the owner and are for guidance purposes only. Please refer to RCT planning portal using planning ref no 24/0863/FUL for any further information in relation to planning.
Ystrad Rhondda is located on the A4058 between Tonypandy and Treorchy where there is a mix of residential housing and several local traders of varied business, leisure and food uses.
For any further information or clarification please refer to the legal pack once available.
FRONTAGE - Shop frontage with security roller shutter.
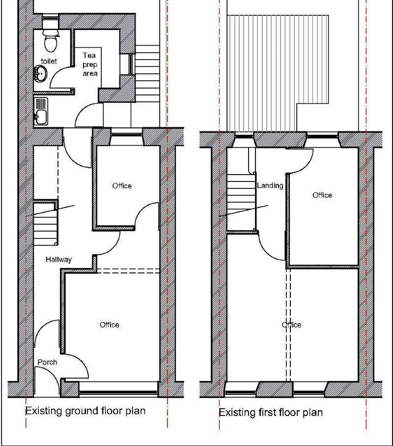
GF - Commercial area, storage areas, a kitchenette and wc.
FF - Three rooms and shower room.
LGF - Storage use only
OS - Rear lane delivery access, upper level patio terrace.
Informed Freehold – please refer to legal pack for verification of tenure
Viewing by appointment with Seel and Co – www.seelauctions.co.uk
Buyer's Premium - 0.00% with a minimum of £0 (inc of VAT) payable on exchange of contracts. Please refer to the legal pack for any further disbursements to be paid by the purchaser on completion.
Each property sold is subject to a Reserve Price. The Reserve Price, which is agreed between the seller and the auctioneer just prior to the auction, will be within + or - 10% of the Guide Price. The Guide Price is issued solely as a guide so that a buyer can consider whether or not to pursue their interest. Both the Guide Price and the Reserve Price can be subject to change up to and including the day of the auction.
Auctioneers Office, Seel and Co (029) 2037 0117
FOR SALE BY PUBLIC AUCTION on Tuesday, 12 May 2026 online via the Seel Auctions website. Bidding will commence from midday on Monday, 11 May and conclude in order from Lot 1 at 4:00 pm on Tuesday, 12 May 2026
We've partnered with Watts Commercial Finance to offer a wide range of finance options from bridging loans to development finance.
Apply for Finance* Generally speaking Guide Prices are provided as an indication of each seller's minimum expectation, i.e. 'The Reserve'. They are not necessarily figures which a property will sell for and may change at any time prior to the auction. Virtually every property will be offered subject to a Reserve (a figure below which the Auctioneer cannot sell the property during the auction) which we expect will be set within the Guide Range or no more than 10% above a single figure Guide.
By setting a proxy bid, the system will automatically bid on your behalf to maintain your position as the highest bidder, up to your proxy bid amount. If you are outbid, you will be notified via email so you can opt to increase your bid if you so choose.
If two of more users place identical bids, the bid that was placed first takes precedence, and this includes proxy bids.
Another bidder placed an automatic proxy bid greater or equal to the bid you have just placed. You will need to bid again to stand a chance of winning.