Prominent property on Churchill way and close to Queen street extending to approximately 8,571 sqft (796sqm) which could be suitable for a variety of uses, subject to consents. Please note that neighbouring 6 & 8 Churchill way are listed as the following lot in this auction.
The property comprises a ground floor retail / A3 use with basement. There are two upper floors which have been used as offices. One of the ground floor retail units is occupied by Coral bookmakers and we are informed that they are holding over on their lease at a rent of £15,000pa, the remainder of the building is vacant. Please consult the legal pack when available for confirmation of tenancy details.
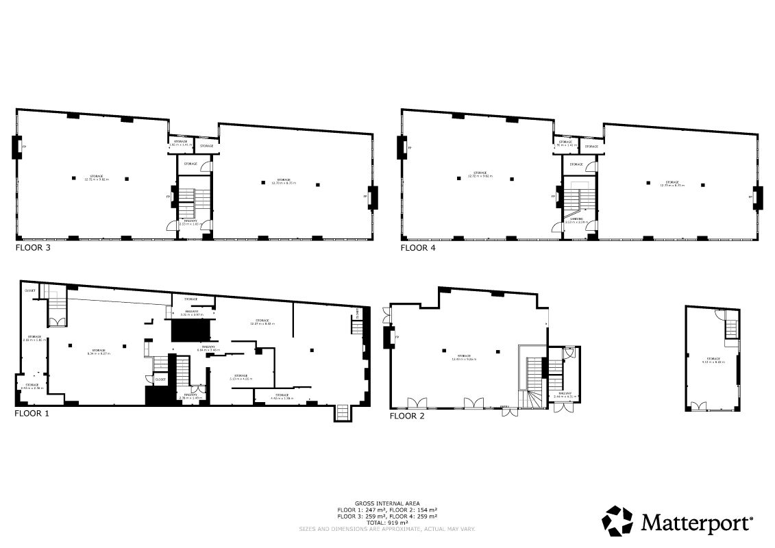
This property briefly comprises ground floor retail / A3 use with basement. and two vacant upper floors which have been used as offices previously. Outside there is a car park/yard area to the side of the building and between 4 & 6 Churchill Way. The building appears to be in generally good order but is in need of complete internal refurbishment. The layout is as follows;
Ground Floor shop - 330 sqft, Basement - 335 sqft
Corals bookmakers shop - 701 sqft
A3 Unit G/Floor - 1,213 sqft, Basement - 1,422 sqft
First Floor Office 1 - 1,205 sqft, Office 2 Vacant - 1,080 sqft
Second Floor Office 1 - 1,205 sqft, Office 2 Vacant 1,080 sqft
4 Churchill Way has a large frontage onto Churchill Way. Local occupiers include a mix of local and national businesses as well as residential developments. Neighbours include Tesco, Nat West, Pulse, The Dock Feeder and Cardiff Arms, with numerous nearby residential units on Churchill Way and Charles Street as well as Landmark Place.
Churchill Way and the immediate surroundings have seen significant investment in the last couple of years. This includes opening up the canal/dock feeder at the top of Churchill Way and the associated landscaping/ streetscaping directly in front of these units.
Please see the full 3D VR walkthrough of both buildings as soon as this is available.
Informed Freehold – please refer to legal pack for verification of tenure
Viewing by appointment with Seel and Co – www.seelandco.com/auctions
Buyer's Premium - 1.20% with a minimum of £1,200 (inc of VAT) payable on exchange of contracts. Please refer to the legal pack for any further disbursements to be paid by the purchaser on completion.
Each property sold is subject to a Reserve Price. The Reserve Price, which is agreed between the seller and the auctioneer just prior to the auction, will be within + or - 10% of the Guide Price. The Guide Price is issued solely as a guide so that a buyer can consider whether or not to pursue their interest. Both the Guide Price and the Reserve Price can be subject to change up to and including the day of the auction.
Auctioneers Office, Seel and Co (029) 2037 0117
FOR SALE BY PUBLIC AUCTION on Tuesday, 10 February 2026 online via the Seel and Co website. Bidding will commence from midday on Monday, 22 January and conclude in order from Lot 1 at 4:00 pm on Tuesday, 10 February 2026
We've partnered with Cornerstone Commercial Finance to offer a wide range of finance options from bridging loans to development finance.
Apply for Finance* Generally speaking Guide Prices are provided as an indication of each seller's minimum expectation, i.e. 'The Reserve'. They are not necessarily figures which a property will sell for and may change at any time prior to the auction. Virtually every property will be offered subject to a Reserve (a figure below which the Auctioneer cannot sell the property during the auction) which we expect will be set within the Guide Range or no more than 10% above a single figure Guide.
By setting a proxy bid, the system will automatically bid on your behalf to maintain your position as the highest bidder, up to your proxy bid amount. If you are outbid, you will be notified via email so you can opt to increase your bid if you so choose.
If two of more users place identical bids, the bid that was placed first takes precedence, and this includes proxy bids.
Another bidder placed an automatic proxy bid greater or equal to the bid you have just placed. You will need to bid again to stand a chance of winning.