A pair of four-storey Victorian villas in the heart of Cardiff city centre with parking to the rear. Currently arranged as office space but could be suitable for a variety of uses, subject to consents. Vacant. Please note the neighbouring property is listed as the previous lot in this auction.
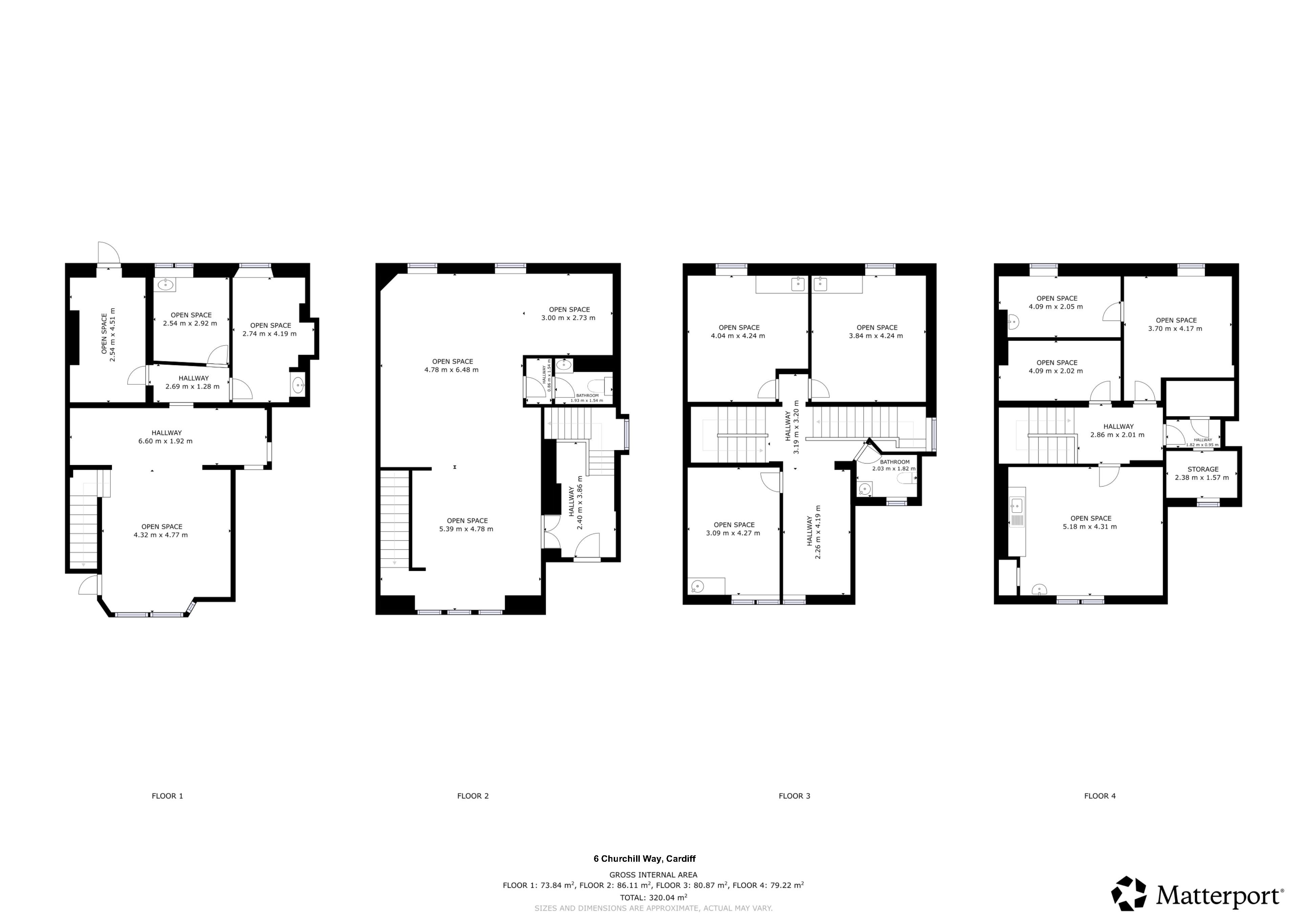
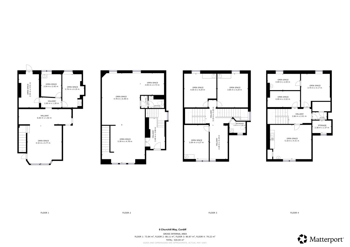
The two semi-detached buildings are currently arranged as office/studios as the most current use was as a beauty/therapy centre with accommodation totalling 5100sqft (475sqm) approx. across the two buildings. Outside there is a secure car park to the rear. Each property has four floors with the following approximate net areas -
Ground Floor 685 sqft (64sqm)
First Floor 665 sqft (62sqm)
Second Floor 570 sqft (53sqm)
Basement 735 sqft (68sqm)
Total 2,555 sqft (237sqm)
The buildings are in reasonable order throughout but would benefit from decorative improvement throughout. They have a large frontage onto Churchill Way. Local occupiers include a mix of local and national businesses as well as residential developments. Neighbours include Tesco, Nat West, Pulse, The Dock Feeder and Cardiff Arms, with numerous nearby residential units on Churchill Way and Charles Street as well as Landmark Place.
Churchill Way and the immediate surroundings have seen significant investment in the last couple of years. This includes opening up the canal/dock feeder at the top of Churchill Way and the associated landscaping/ streetscaping directly in front of these units.
Please see the full 3D VR walkthrough of both buildings as soon as this is available.
Informed Freehold – please refer to legal pack for verification of tenure
Viewing by appointment with Seel and Co – www.seelandco.com/auctions
Buyer's Premium - 1.20% with a minimum of £1,200 (inc of VAT) payable on exchange of contracts. Please refer to the legal pack for any further disbursements to be paid by the purchaser on completion.
Each property sold is subject to a Reserve Price. The Reserve Price, which is agreed between the seller and the auctioneer just prior to the auction, will be within + or - 10% of the Guide Price. The Guide Price is issued solely as a guide so that a buyer can consider whether or not to pursue their interest. Both the Guide Price and the Reserve Price can be subject to change up to and including the day of the auction.
Auctioneers Office, Seel and Co (029) 2037 0117
FOR SALE BY PUBLIC AUCTION on Tuesday, 10 February 2026 online via the Seel and Co website. Bidding will commence from midday on Monday, 22 January and conclude in order from Lot 1 at 4:00 pm on Tuesday, 10 February 2026
We've partnered with Cornerstone Commercial Finance to offer a wide range of finance options from bridging loans to development finance.
Apply for Finance* Generally speaking Guide Prices are provided as an indication of each seller's minimum expectation, i.e. 'The Reserve'. They are not necessarily figures which a property will sell for and may change at any time prior to the auction. Virtually every property will be offered subject to a Reserve (a figure below which the Auctioneer cannot sell the property during the auction) which we expect will be set within the Guide Range or no more than 10% above a single figure Guide.
By setting a proxy bid, the system will automatically bid on your behalf to maintain your position as the highest bidder, up to your proxy bid amount. If you are outbid, you will be notified via email so you can opt to increase your bid if you so choose.
If two of more users place identical bids, the bid that was placed first takes precedence, and this includes proxy bids.
Another bidder placed an automatic proxy bid greater or equal to the bid you have just placed. You will need to bid again to stand a chance of winning.